Коли виникає бажання побудувати будинок, в голові більшості людей виникає красива картинка. Відразу з'являється безліч ідей щодо дачного будиночка: в якій частині ділянки він буде розташовуватися, які розміри і планування мати, поверховість, оздоблення, кількість вікон і дверей. Ідея швидко переходить у фазу активних дій. Але з чого слід починати, знають далеко не всі. Не варто відразу хапатися за інструменти або рити котлован для фундаменту. Перше, що необхідно зробити - це скласти докладний проект садового і дачного будиночка, а вже потім приступати до будівництва.
Примітка: всі проекти надаються безкоштовно!























Питання обов'язкового проектування вважається одним з найбільш гаряче обговорюваних і, на жаль, не має однозначної відповіді. Деякі впевнені, що будиночок можна звести без попередньої оцінки та плану робіт. Але потім прихильники цієї теорії стикаються з перевитратою коштів, зрушеннями термінів будівництва, низькою ліквідністю будинку в разі подальшого продажу. Люди, які вірять в силу проектів дачних будиночків, впевнені, що візуалізація процесу дозволить не тільки правильно розподілити бюджет, але і створити ідеальний будинок.
Что представляет собой проект? Это не просто лист бумаги, на котором карандашом делаются пометки. Это полномасштабный документ, который состоит, как минимум, из двух частей:
К примеру, проект бытовки или маленького дачного домика может не содержать изысков в оформлении, а быть всецело направленным на строительную часть. Чем подробнее будет составлена документация, тем легче будет совершать работы, в том числе связанные с канализацией, отоплением, прокладкой электрической сети и так далее.
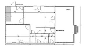
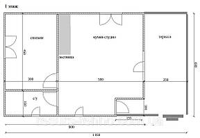
Вважається, що найкращим варіантом буде проект одноповерхового дачного будиночка, що включає в себе архітектурні та конструктивні рішення (АР+КР). План дозволяє комплексно підійти до будівництва, продумати варіації внутрішньої планування, міцності будівлі і його базових характеристик. До того ж, досвідчений проектувальник обов'язково врахує правила пожежної безпеки, навіть якщо це проект дачного будиночка 6х6 – маленького і компактного.
Главная цель проекта – совершение точного расчета нагрузки, которая припадает как на сам дом, так и на фундамент. Это гарант того, что при происшествии нескольких лет знание будет стоять нерушимо, фундамент не пойдет трещинами, стены не разойдутся. Реконструкция обойдется намного дороже, чем первоначальное составление проекта дачного домика в Киеве или другом городе Украины.
Важно не только понимать особенности строительства, но и владеть информацией о стоимости работ. Проект помогает составить подробную смету с указанием расхода материалов.
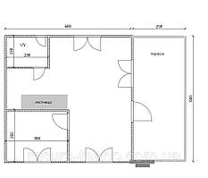
Проектирование лучший помощник для инженерной системы. Визуализируя будущее строение и составляя, к примеру, проект дачного домика с террасой, можно сразу сделать акценты на отверстиях для водосточных труб, внешнем освещении или наличии окон в том или ином месте.
План помогает экономить. Покупка материалов «на глаз» и строительство «на всякий случай» приведут к расточительству бюджета еще на этапе закладки фундамента. Ошибки в меньшую сторону приводят к недостаточной прочности и проблемным ситуациям, которые можно было бы избежать, имея план.